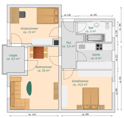
3-Zimmer-Wohnung 85354 Freising bei München Düwellstraße 73, 1. OG Lage: Die neu renovierte 3-Zimmer-Wohnung befindet sich im 1. OG eines 5-geschossigen Gebäudes in ruhiger Wohnlage, nur wenige Fußminuten von der Freisinger Altstadt entfernt und unmittelbar am Vimypark. Alle Einkaufsmöglichkeiten für den täglichen Bedarf befinden sich in der Nähe. Die Anbindung an die Münchner City erfolgt durch den nahegelegenen Bus als Zubringer zur S-Bahn-Station „Freising“. Die Autobahn ist in etwa 15 Minuten zu erreichen. Wohnfläche: ca. 65,2 m² Ausstattung: neuer Parkettboden im Wohn-, Kinder- und Schlafzimmer; Bad gefliest mit Badewanne und Fenster; neuer Fliesenboden in der Küche; neue Zimmertüren und Eingangstüre mit Schallschutz und dreifach Verriegelung; Süd-Balkon; Einbauküche ist nicht vorhanden Miete: € 940,-- + Stellplatz im Freien 40,-- + Nebenkostenvorauszahlung € 205,--(gesamt € 1.185,--) Kaution: € 2.940,-- in Bar oder per Überweisung Mietdauer: ab 01.10.2025 oder 15.10 2025 auf unbestimmte Zeit Besichtigung: nach telefonischer Absprache mit Ritt-Immobilien, Tel.: 089/71909989 oder 0177/4110804 Sonstiges: Die Wohnung wird im neu renovierten Zustand übergeben. Der Energiewert beträgt 92kWh/(m².a) inkl. WW. Das Bild vom Flur ist von der Wohnung im 3. OG. Hinweis: Alle Angaben erfolgen ohne Gewähr, da sie aufgrund Angaben Dritter gegeben werden. Im Übrigen erbringen wir die Maklerleistung auf der Grundlage unserer Geschäftsbedingungen, die Sie bitte beachten wollen.
Grundrissskizze
copyright by Ritt Immobilien, Roland Ritt
Ritt Immobilien Ginsterweg 5 a Tel.: 089/71909989 Handy: 0177/4110804 Email: info@ritt-immobilien.de 81377 München Fax: 089/71909987 Handy: 0159/01358146
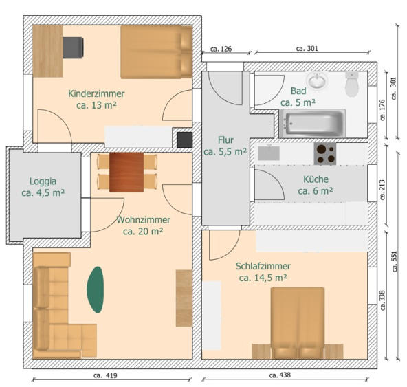
3-Zimmer-Wohnung 85354 Freising bei München Düwellstraße 73, 1. OG Lage: Die neu renovierte 3-Zimmer-Wohnung befindet sich im 1. OG eines 5-geschossigen Gebäudes in ruhiger Wohnlage, nur wenige Fußminuten von der Freisinger Altstadt entfernt und unmittelbar am Vimypark. Alle Einkaufsmöglichkeiten für den täglichen Bedarf befinden sich in der Nähe. Die Anbindung an die Münchner City erfolgt durch den nahegelegenen Bus als Zubringer zur S-Bahn-Station „Freising“. Die Autobahn ist in etwa 15 Minuten zu erreichen. Wohnfläche: ca. 65,2 m² Ausstattung: neuer Parkettboden im Wohn-, Kinder- und Schlafzimmer; Bad gefliest mit Badewanne und Fenster; neuer Fliesenboden in der Küche; neue Zimmertüren und Eingangstüre mit Schallschutz und dreifach Verriegelung; Süd-Balkon; Einbauküche ist nicht vorhanden Miete: € 940,-- + Stellplatz im Freien 40,-- + Nebenkostenvorauszahlung € 205,-- (gesamt € 1.185,--) Kaution: € 2.940,-- in Bar oder per Überweisung Mietdauer: ab 01.10.2025 oder 15.10.2025 auf unbestimmte Zeit Besichtigung: nach telefonischer Absprache mit Ritt-Immobilien, Tel.: 089/71909989 oder 0177/4110804 Sonstiges: Die Wohnung wird im neu renovierten Zustand übergeben. Der Energiewert beträgt 92kWh/(m².a) inkl. WW. Das Bild vom Flur ist von der Wohnung im 3. OG. Hinweis: Alle Angaben erfolgen ohne Gewähr, da sie aufgrund Angaben Dritter gegeben werden. Im Übrigen erbringen wir die Maklerleistung auf der Grundlage unserer Geschäftsbedingungen, die Sie bitte beachten wollen.
Grundrissskizze
Ritt Immobilien Ginsterweg 5 a Tel.: 089/71909989 Handy: 0177/4110804 Email: info@ritt-immobilien.de 81377 München Fax: 089/71909987 Handy: 0159/01358146
copyright by Ritt Immobilien, Roland Ritt