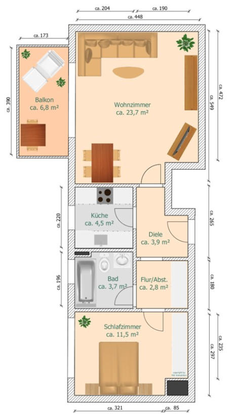
2 – Zimmer - Wohnung 80807 München – Milbertshofen Korbinianstraße 8 Lage: Die 2-Zimmer-Wohnung, befindet sich im 2. OG eines Mehrfamilienhauses (E+3) in ruhiger und zentraler Stadtlage und ist nach Westen ausgerichtet. Alle Einkaufsmöglichkeiten für den täglichen Bedarf, Ärzte, Banken und Schulen sind in unmittelbarer Umgebung vorhanden. Hoher Freizeitwert ist durch den nahegelegenen Olympiaparkpark, dem Luitpoldpark und der Nähe nach Schwabing gegeben. Die öffentliche Anbindung erfolgt durch die wenige Gehminuten entfernte U-Bahnstation (U2) „Milbertshofen“ oder „Frankfurter Ring“. Wohnfläche: ca. 53,35 m² Wohngeld: mtl. € 338,-- (Tiefgaragenstellplatz mtl. € 11,--) Baujahr: ca. 1979/80 Ausstattung: Teppichboden in der Diele, Wohn-/Schlafzimmer; Fliesenboden in der Küche; Bad mit Badewanne und Fenster; kleine Einbauküche mit integrierter Waschmaschine; Einbauschrank im Flur und Wohnzimmer; großer Westbalkon mit Markise Kaufpreis: VB € 410.000,-- + Tiefgaragenstellplatz € 28.000,-- Provision: 3,57 % incl. MwSt. aus dem Gesamtkaufpreis, fällig und zahlbar bei notariellem Vertragsabschluss Besichtigung: nach telefonischer Absprache mit Ritt-Immobilien, Tel.: 089/71909989 oder 0177/4110804 Sonstiges: Die Wohnung ist unvermietet und wird im freien Zustand übergeben. Für das Gebäude liegt ein Energieverbrauchsausweis mit einem Endenergieverbrauchskennwert von 119 kWh/(m².a) vor. Die Beheizung und Warmwasserversorgung erfolgt durch Gas. Die Rücklage betrug zum 31.12.2023 ca. € 116.000,--. Hinweis: Alle Angaben erfolgen ohne Gewähr, da sie aufgrund Angaben Dritter gegeben werden. Im Übrigen erbringen wir unsere Maklerleistung auf der Grundlage unserer Geschäftsbedingungen, in denen Sie auch die Widerrufbelehrung finden. Wir bitten diese zu beachten.
Grundrissskizze
copyright by Ritt Immobilien, Roland Ritt
Ritt Immobilien Ginsterweg 5 a Tel.: 089/71909989 Handy: 0177/4110804 Email: info@ritt-immobilien.de 81377 München Fax: 089/71909987 Handy: 0159/01358146
Ritt Immobilien Ginsterweg 5 a Tel.: 089/71909989 Handy: 0177/4110804 Email: info@ritt-immobilien.de 81377 München Fax: 089/71909987 Handy: 0159/01358146
copyright by Ritt Immobilien, Roland Ritt
2 – Zimmer - Wohnung 80807 München – Milbertshofen Korbinianstraße 8 Lage: Die 2-Zimmer-Wohnung, befindet sich im 2. OG eines Mehrfamilienhauses (E+3) in ruhiger und zentraler Stadtlage und ist nach Westen ausgerichtet. Alle Einkaufsmöglichkeiten für den täglichen Bedarf, Ärzte, Banken und Schulen sind in unmittelbarer Umgebung vorhanden. Hoher Freizeitwert ist durch den nahegelegenen Olympiaparkpark, dem Luitpoldpark und der Nähe nach Schwabing gegeben. Die öffentliche Anbindung erfolgt durch die wenige Gehminuten entfernte U-Bahnstation (U2) „Milbertshofen“ oder „Frankfurter Ring“. Wohnfläche: ca. 53,35 m² Wohngeld: mtl. € 338,-- (Tiefgaragenstellplatz mtl. € 11,--) Baujahr: ca. 1979/80 Ausstattung: Teppichboden in der Diele, Wohn-/Schlafzimmer; Fliesenboden in der Küche; Bad mit Badewanne und Fenster; kleine Einbauküche mit integrierter Waschmaschine; Einbauschrank im Flur und Wohnzimmer; großer Westbalkon mit Markise Kaufpreis: VB € 410.000,-- + Tiefgaragenstellplatz € 28.000,-- Provision: 3,57 % incl. MwSt. aus dem Gesamtkaufpreis, fällig und zahlbar bei notariellem Vertragsabschluss Besichtigung: nach telefonischer Absprache mit Ritt-Immobilien, Tel.: 089/71909989 oder 0177/4110804 Sonstiges: Die Wohnung ist unvermietet und wird im freien Zustand übergeben. Für das Gebäude liegt ein Energieverbrauchsausweis mit einem Endenergieverbrauchskennwert von 119 kWh/(m².a) vor. Die Beheizung und Warmwasserversorgung erfolgt durch Gas. Die Rücklage betrug zum 31.12.2023 ca. € 116.000,--. Hinweis: Alle Angaben erfolgen ohne Gewähr, da sie aufgrund Angaben Dritter gegeben werden. Im Übrigen erbringen wir unsere Maklerleistung auf der Grundlage unserer Geschäftsbedingungen, in denen Sie auch die Widerrufbelehrung finden. Wir bitten diese zu beachten.
Grundrissskizze